中国目前有四五千家电影院,每家风格迥异,各有优劣,都源于电影院设计灵感和智慧。而电影院设计怎么做?找谁做?找什么公司做?相信很多正在建设电影院或者正打算做电影院投资建设的人都在考虑。一般来讲,新建的电影院项目在筹备完成后,将会进入设计施工期,有时候会由施工方负责电影院设计,而大部分时候会另外进行设计招标,专门针对电影院的设计进行招标。而电影院设计与一般的室内设计完全不同,它的周期更长,而且电影院建成后十年内不会更换设计装修风格,还需要一直保持着时尚前沿的风格,所以电影院设计就显得异常重要,非常注重设计的价值。下面我们跟随赛宾影院(电影院设计装修:广州赛宾声学工程技术有限公司)一起谈谈电影院设计及要注意的一些要点。
一、首先,一般电影院设计需要强调的8大功能
1、能给购物中心带来具有消费力的客户群体;
2、增加顾客在购物中心的滞留时间;
3、人流导向功能:对购物中心规划产生影响和互动,提高高楼层租金;
4、引导时尚潮流、引领消费功能;
5、注重文化社交功能,赛宾影院专业做影院设计装修;
6、名星活动、新片宣传等广告效应;
7、消费节奏控制:让人们有更好的休闲心情;
8、增添活力、新鲜的因素,让购物中心年轻,延长购物中心的生命:月月有新片。
二、电影院设计基本构成
电影院设计。通用的电影院设计结构包括等候大厅、票房、卖品部、检票口、过道走廊、影厅、放映室、厕所,有条件的还要建设贵宾室、吸烟区、贵宾厅、员工休息室、办公区等。
三、电影院设计包含元素
影院元素包括几个系统,如等候大厅主题系统、售票系统、卖品系统、影务系统、电影放映系统、影厅、厕所、影院文化系统、影讯发布系统、影院辅助系统等。
售票系统:指由卖票柜台和电子售票系统组成的设备设施,包括售票柜台、选座电脑显示屏、会员通道、Led大屏幕等。
卖品系统:指由卖品柜台、卖品销售系统、各种可乐机、饮料柜员机、爆米花机、各种冰柜、卖品库房、卖品制作间等组成。
影务系统:指由检票口票台、进场时钟组成。
电影放映系统:是指放映室内设施和各种放映设备、放映工作区、停片区、倒片区、捡片区等组成。
影厅系统:由厅号、隔音幕墙、阶梯座位、放映窗口、控制台、温湿度仪、银幕及辅助设施、环绕立体声音箱、清洁灯、测光等、散场灯、地角灯、其他各种修饰灯,一级出入场通道组成。
影院文化系统:主要是指在一些等候区域和谐的融入一些电影院特色的文化宣传图片或文化墙,还包括影城大厅主题海报灯箱、国道走廊海报灯箱等。
影讯发布系统:是指电影院大厅、厕所、吸烟区的各种电视墙和电视。
大厅主题系统:包括大厅雕饰、大厅四周高层相应象征对象和各种效果的灯组。
四、电影院的设计风格和色彩
电影院设计。电影院的设计风格除了时尚,以及五到十年不落伍之外,一般都要与国际接轨。电影院的风格要融入当地的文化特色,在色彩方面惯用蓝色主题、红色主题和黄色主题,凸显现代影院娱乐功能,因此颜色鲜艳明快,同时又有一定的厚重感,不张扬,大厅、走廊装饰凸显层次,等等。
赛宾影院(官网:http://www.saibin.com/)是中国最早致力于影院影城战略、品牌、设计、建设、商业规划实践的智业机构之一,有超过10年专注于影院设计装修、影院工艺设计、影院工程建设及运营管理系统的集成服务经验,积累了超百项数字影院的设计工程经验,逐渐形成具有优势特色的品牌影院建设、影院商业文化策划、资本对接三维一体的服务网络,以具有全球思维和视野的“中式国际”影院品牌营销建设理念,从事数字影院建设的规划、设计、采购、施工安装的系统解决方案,影院文化商业的品牌营销策略规划、创意执行、媒介运作、管理运营,以及影院文化商业的品牌营销整体或局部实战操作。
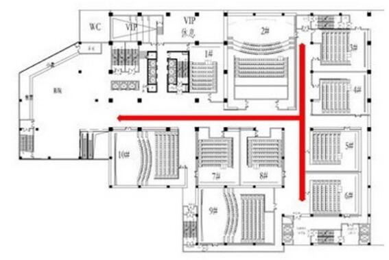
五、电影院布置形式
电影院设计。观众厅是电影院最重要的功能空间,如何使观众在最短时间找到自己要去的观众厅,平面布置就尤为重要。通常电影院影城平面布置形式有5种形式,分别为“一”型、“L” 型、“T” 型以及“F” 、“H”型布置方式。最优的方案是:观众在通过检票口后,能看到所有的厅号牌,也就是观众走廊为“一”字型。但受到购物中心平面的限制,不是所有影城都能布置出最优方案,这就产生了“L”“T”型的方案,即观众只需一次转弯就可看到要去的观众厅,而“F”、“H” 型方案是布置中的大忌。
(1)“一”字型方案

【一型电影院】
当电影院所在区域为狭长的形状,通常可以布置出此方案。观众走廊占中间一跨,走廊一侧为两跨,另一侧两跨或三跨。
(2)“L” 型方案

【L型电影院】
当电影院所在区域为比较方正,宽度和长度都超过7跨时,则会产生“L”型方案。
(3)“T”型方案

【T型电影院】
同样,电影院所在区域较方正,宽度和长度都超过7跨时,也会产生 “T”型方案。
六、设计标准

【设计标准图1】

【设计标准图2】
七、项目施工
项目施工是在现有电影院设计图纸的基础上进行的。
项目施工期从原材料送达之日起算起,一般需要3个月(90天)时间,先从框架结构做起,分离出等候大厅、影厅区、放映区、办公区,然后再进行影厅拆分、座位钢结构搭建、再到天花板、各种空灯、幕墙、座椅、地毯安装,最后是立体声系统安装、银幕安装和地角灯的安装调试。最后是影院票房、卖品部进驻和大厅施工。
影院施工通常由4~5个施工队伍同时施工,包括钢结构施工队、幕墙施工队、地砖施工队、地毯座椅施工队和造景施工队组成,一级强电、弱电等。
八、案例欣赏
重庆铜梁星星国际影城
由广州赛宾声学工程技术有限公司负责设计,洽谈专线400-666-0619,138-2847-9126)。

【赛宾影院设计案例欣赏1大堂】
设计概念:
城市,是时代变迁的浓缩故事;影院,是城市景象的历史缩影。走进影院,会铜梁金龙、品岁月青华,读出这个城市的文明和韵味。
电影院设计如何做?这城市中来来往往的游客和接连不断的事件,与空间的设计元素结合在一起,为成长中的街区带来了变化与活力。随着重庆铜梁的不断发展,展览中心和商业区的不断成熟, 铜梁已经成为了极具活力的地区。
作为铜梁著名地标,影院更是其焦点,未来这里将成为铜梁的文艺地标。
受到城市文化结合大自然的启发,影院内部空间打造出大自然的环境,在厚重的都市背景和眼花缭乱的当代文化中开辟出一个轻松的空间,营造出一个中国禅意的景象。

【赛宾影院设计案例欣赏2观众厅】
项目概况:
宝莲国际都会位于铜梁区新城核心区中兴路北侧核心商圈内,占地面积约50亩,总建筑面积为231,385㎡,其中地上部分175,361㎡,地下56,024㎡。
由约8万方大型商业卖场及191米5A甲级写字楼和150米高级公寓楼组成。 宝莲国际都会是铜梁核心区高端城市综合体,集居住、商务办公、购物、休闲、 娱乐为一体。项目总建筑面积26万方,由10万方大型体验式购物中心、220米超高层5A甲级写字楼和160米全能公寓组成。
影院布置在四层,面积为 3198m2(含夹层),共6个观众厅,746座。
更多赛宾影院设计案例可登录赛宾官网(http://www.saibin.com/)或影院网站(http://www.cinema.saibin.com/cn/index.php)查看。












